概述
ZHEYI-5500插入式密度計可實時在線的密度檢測。他可以運營于以密度為基本參數產品的過程控制
或者以固體百分比或濃度百分比為參照質量控制中。典型行業包括,石油化工行業,釀酒業,食品行業,
制藥行業和礦物加工(如粘土,碳酸鹽、硅酸鹽等),具體應用于以上行業中的多產品管道中的界面檢測
,攪拌混合物的密度檢測,反應釜終點監測,離析器界面檢測。
ZHEYI--590插入式密度計內含微處理器,故傳感器可進行完整的信號調節、計算和診斷功能,無需遠
程電子裝置進行處理。
技術參數

機械安裝
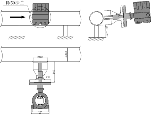
1、安裝配管和方式示意圖
保證密度計能夠測量準確和顯示穩定,在大于100口徑的管路上采用縮頸安裝,小于100口徑
的管路上采用擴徑配管和縮頸安裝,儀表前后需要有一定的直管段,保證流體在流過叉體時
出于層流狀態。

安裝示例圖

儀表選型
|